Editovat
Přejít na obsahovou část stránky

Poradenská a projektová činnost

Společnost TECHNO-AIR s.r.o. je zaměřena na komplexnost a plný rozsah obchodně technických služeb spojených s vlastní dodávkou zařízení z oblasti techniky stlačeného vzduchu.

Proto jako součást přípravných řízení dodávek a montáží nabízí firma TECHNO-AIR s.r.o. i systémovou technickou podporu, která po dohodě obvykle zahrnuje návštěvu odborného pracovníka u zákazníka a projednání jeho požadavků a potřeb.
 

Poradenská a konzultační činnost

Součástí projednání je vedle návrhu optimální sestavy zařízení i poradenství při přípravě instalace, tj. především volba vhodného prostoru pro umístění, řešení uspořádání strojního zařízení a souvisících profesí a projednání rozsahu a podrobností zpracování projektové dokumentace (pokud rozsah zakázky projekt vyžaduje).

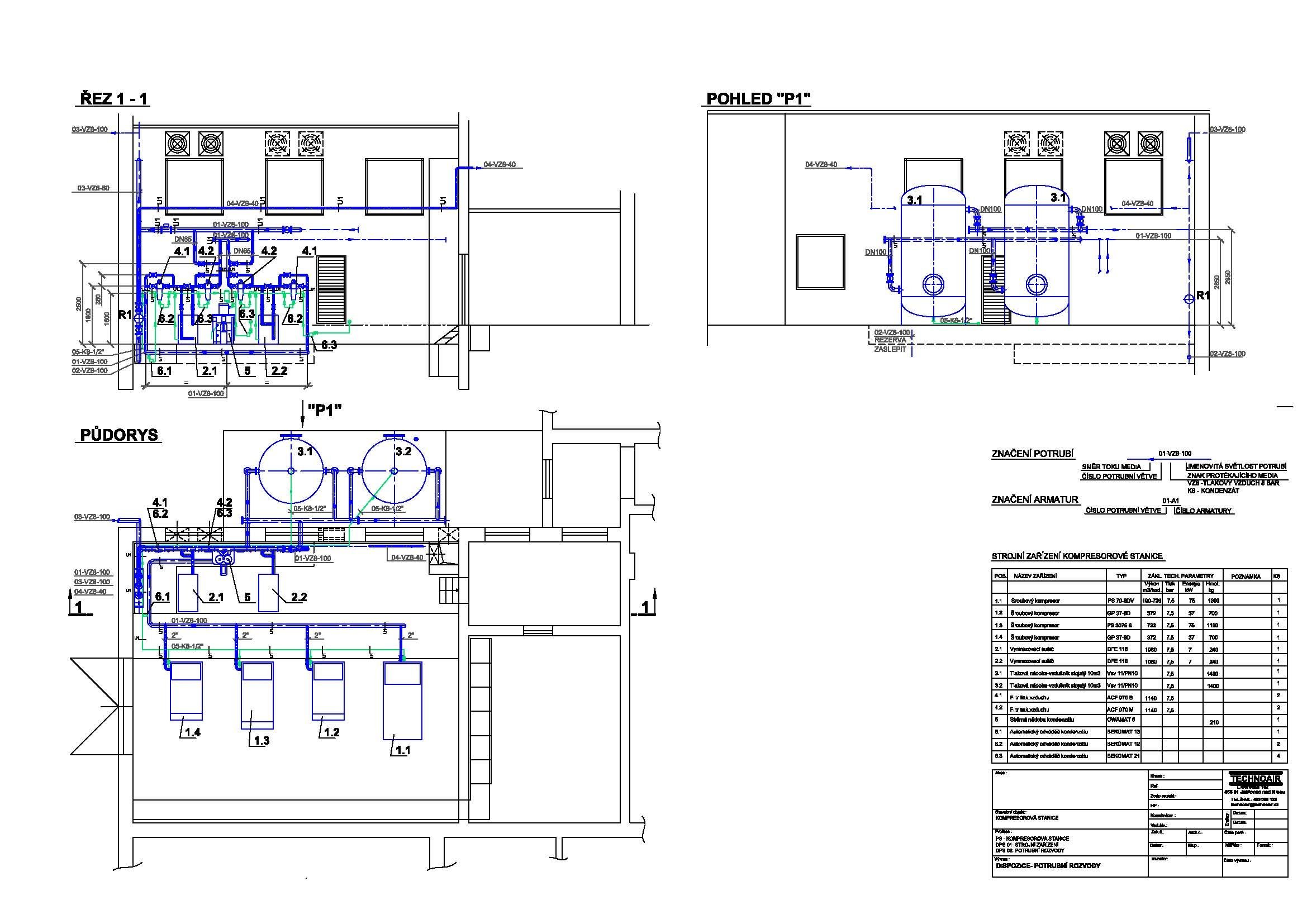
Podle složitosti a rozsah u akce a podle požadavků zákazníka firma TECHNO-AIR s.r.o. nabízí další volby pro přípravnou projektovou dokumentaci kompresorových stanic a rozvodů tlakového vzduchu.
 

Montážní dokumentace kompresorových stanic

Pokud zákazník nemá na akci předem zpracován vlastní prováděcí projekt resp. pokud charakter stavby či realizace díla legislativně projekt přímo nevyžaduje a firma TECHNO-AIR s.r.o. je dodavatelem technologického zařízení kompresorovny, TECHNO-AIR s.r.o. zpracuje pro své potřeby vlastní montážní dokumentaci a po dokončení díla předá zákazníkovi dokumentaci skutečného stavu.
 

Projektová dokumentace kompresorových stanic

V případech, kdy je požadována detailní projektová dokumentace, TECHNO-AIR s.r.o. nabízí podrobné zpracování kompletních projektů kompresorových stanic včetně souvisících profesí nebo pouze jednotlivých dílčích částí s podporou CAD systémů ve všech úrovních stavebních řízení, obvykle v následujícím členění na dílčí provozní soubory (DPS) resp.části:

  • DPS 01–Strojní zařízení - návrh strojního zařízení kompresorovny vč. bilance výroby a spotřeby tlakového vzduchu a kvalitativních parametrů vzduchu, výkresová dokumentace dispozičního rozmístění kompresorů, zařízení na úpravu a akumulaci tlakového vzduchu (sušiče, filtry, tlakové nádoby), kondenzátní hospodářství (odvaděče kondenzátu, separátory voda/olej, případně čističky odpadních vod pro zbytkové množství oleje v odpadní vodě menší než 0,5 mg/l.) popřípadě další příslušenství.
  • DPS 02-Potrubní rozvody – výkresové dokumentace uspořádání a dimenzování propojovacího potrubí tlakového vzduchu a svodu kondenzátu. V případě kompresorů vodou chlazených nebo kompresorů s vybavením rekuperační jednotkou pro zpětné využití odpadního tepla k ohřevu TUV návrh potrubí chladícího okruhu, rozvodů chladící vody, popř. řešení vytápění a rozvodů zpětného využití tepla. Technická zpráva, specifikace potrubí a instalačního materiálu popř. položkový rozpočet.
  • DPS 03–Vzduchotechnika (VZT) – výkresová dokumentace s řešením vzduchotechnického zařízení na straně sání vzduchu do prostoru kompresorovny (podle místních podmínek osazení protidešťových žaluzií, regulačních klapek,filtrace, tlumení hluku,…), řešení odvodu otepleného chladícího vzduchu z kompresorů resp. z kompresorové stanice vč. případného zpětného využití odpadního tepla z otepleného vzduchu. Technická zpráva, specifikace VZT materiálu popř. položkový rozpočet.
  • DPS 04–Elektro zařízení – výkresová dokumentace s řešením elektrorozváděče kompresorovny, silových elektrorozvodů k jednotlivým zařízením, MaR a ovládací vedení zařízení kompresorovny. Technická zpráva, specifikace elektro instalačního materiálu popř. položkový rozpočet.
  • DPS 05–Stavební řešení a požadavky na jiné profese – stavební řešení prostoru kompresorovny resp. požadavků na stavební úpravy stávajících objektů.

Vedle vlastní projektové dokumentace firma TECHNO-AIR s.r.o. zpracovává i provozní řád kompresorových stanic.
 

Projektová dokumentace potrubních rozvodů stlačeného vzduchu

Firma TECHNO-AIR s.r.o. zpracovává vedle dokumentace kompresorových stanic i projektovou dokumentaci potrubních rozvodů stlačeného vzduchu v prostorách výrobní technologie zákazníka ve všech úrovních stavebních řízení.

Dokumentace zpravidla obsahuje výkresovou dispozici páteřních tras, odboček a svodů k jednotlivým technologickým zařízením či odběrovým místům, výpočet dimenzí jednotlivých potrubních větví, osazení armatur, řešení závěsů a uložení potrubí.

Součástí projektu potrubního rozvodu je technická zpráva, specifikace instalačního materiálu popř. položkový rozpočet.

Máte zájem o zpracování projektu kompresorovny a rozvodů tlakového vzduchu? Kontaktujte nás.

Tento web využívá cookies

Tento web používá k poskytování služeb, personalizaci reklam a analýze návštěvnosti soubory cookie. Používáním tohoto webu s tím souhlasíte. Zobrazit podrobnosti

Nastavení cookies

Vaše soukromí je důležité. Můžete si vybrat z nastavení cookies níže. Zobrazit podrobnosti